Eingabehilfen

3-Zimmer mit Balkon in Leipzig-Lößnig

Watestraße 48, 04279 Leipzig

3 Zimmer
58 m2
465 € Kaltmiete
aussenansicht-3 BGL – 3-Zimmer mit Balkon in Leipzig-Lößnig
Außenansicht 1.jpg
Außenansicht 2.jpg
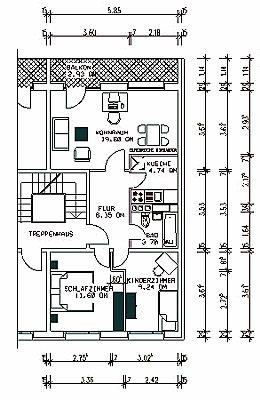
Grundriss 7. OG rechtes TH lin.jpg

Objektbeschreibung

Objektreferenz: 1/4401/4/164 In der Wohnanlage Lößnig stehen 1-4 Zimmer-Wohnungen im sanierten Neubau, teilweise mit Aufzug (hält auf den Etagen 3/6/9), zur Verfügung. Große Südbalkone bieten einen freien Blick auf den schönen Silbersee und Spielplatz. Im Treffpunkt Lößnig in der Watestr. 48 bietet der BGL-Nachbarschaftshilfeverein vielfältige Veranstaltungen an.

Lagebeschreibung

Lößnig und Marienbrunn sind ruhige Wohngegenden mit vielen Grünflächen und sind von vielen Gartenanlagen umgeben. Die Siedlung Lößnig mit überwiegend Neubauten grenzt an das Naherholungsgebiet Silbersee. Das EKZ Moritzhof und Ärztehaus, sowie die gute verkehrstechnische Anbindung runden das Angebot im Quartier ab.

Energieausweis

  • Typ Verbrauchsausweis
  • Etage 7. OG
  • Baujahr 1972
  • Heizung Zentralheizung
  • Befeuerung Fernwärme
  • inkl. Warmwasser Ja

Energiekennwert: 88,60 kWh/(m²*a)

C

Steckbrief

  • Zimmer 3
  • Wohnfläche 58 m2
  • Etage 7. OG
  • verfügbar ab sofort
  • Objektnummer 1/4401/4/164

Kosten

  • Kaltmiete 465 €
  • Betriebkosten 112 €
  • Heizkosten 94 €
  • Gesamtmiete
    zzgl. Genossenschaftsanteile
    671 €

Ausstattung

Fußboden: Vinyl

Aufzug
Balkon
Keller

Sie sind interessiert?

Online bewerben

Nicht das Richtige?

Wohnungsgesuch aufgeben

Bei Fragen oder Problemen mit dem Vermietungsprozess nutzen Sie bitte unseren
Mietinteressenten-Leitfaden